Precision meets
innovation

Fast, affordable as-built packages
with 3D virtual walk-throughs

Trust iGUIDE for error-free site measurement and documentation

The iGUIDE PLANIX R1 creates detailed and colorful images that set it apart in the world of property visualization.

iGUIDE Packages

You're covered from site selection to pre-design, construction and occupancy!

iGUIDE CAD Package


For comprehensive property understanding, each iGUIDE CAD package includes comprehensive property documentation.

  • As-built Floor Plans
  • Dimension Plans
  • 3D Virtual walkthrough
  • Photo tags of building system equipment make, model and serial information
  • Add: 3D Model (RVT File)
  • Add: Reflected Ceiling Plans 
  • Add: Exterior Elevation Drawings 

iGUIDE Premium


Provide an immersive virtual experience that lets colleagues, partners and contractors explore your site 24/7 from any location.

What’s included…

  • 3D Virtual walkthrough
  • Advanced on-screen measurements
  • Room dimensions
  • Floor area calculations
  • Equipment photo tags (Make, model, serial numbers)
  • Downloadable offline file (self-hosting)
  • Detailed Schematic Floor Plans with fixtures and appliances (PDF, JPG, SVG formats)
  • Photo gallery & slide show

iGUIDE Standard


Provide an immersive virtual experience that lets colleagues, partners and contractors explore your site 24/7 from any location.

What’s included…

  • 3D Virtual walkthrough
  • Advanced on-screen measurements
  • Room dimensions
  • Floor area calculations
  • Equipment photo tags (Make, model, serial numbers)
  • Downloadable offline file (self-hosting)
  • Schematic Floor Plans (PDF, JPG, SVG formats)
  • Photo gallery & slide show

Radix Package


iGUIDE RADIX provides fast and efficient site visual documentation. The online interface with lidar point cloud is shareable and can be used to view a site and measure in 3D space.

Deliverables include: 

  • Lidar Point Cloud (DXF)
  • 3D Virtual walkthrough
  • Advanced on-screen measurements

The iGUIDE Advantage

We know your plans need to be precise and you should be able to trust your partner.

Dedicated support

A dedicated iGUIDE Project Manager will work closely with you to understand your goals, timeline, and scope.

Enhanced visualization

Use iGUIDE's comprehensive 3D virtual walkthroughs to communicate with your partners and vendors virtually.

Cost-effective solution

iGUIDE offers competitive pricing, making high-precision site surveys accessible for all commercial businesses.

As easy as 1-2-3

  • Consultation

    Get a head start on your next project. Our iGUIDE Project Manager will work with you to understand your goals, timeline and scope before delivering a customized project plan with a clear quote.

  • Capture and processing

    Our nationwide team of iGUIDE Service Providers utilize iGUIDE PLANIX cameras to capture your site(s). Our team of professional drafters then create the drawing package and project deliverables, all under the watchful eye of our rigorous QA process, ensuring everything aligns with your project's specific needs.

  • Planning and design

    One-click access to your iGUIDE project starts with the iGUIDE Portal. There, your iGUIDE project deliverables will be readily available, empowering your team to virtually explore the space and kickstart the design process. This fosters confident decision-making for a well-informed build.

Connect with an
iGUIDE Project Manager

Experience iGUIDE

Use the green dots on the floor plan to navigate the space.
Click on the Tags icon to view site tags, which help communicate critical site information.
Click the ruler to measure distances between points in 3D space.
Use the green dots on the floor plan to navigate the space.
Click on the Tags icon to view site tags, which help communicate critical site information.
Click the ruler to measure distances between points in 3D space.

Why choose iGUIDE?

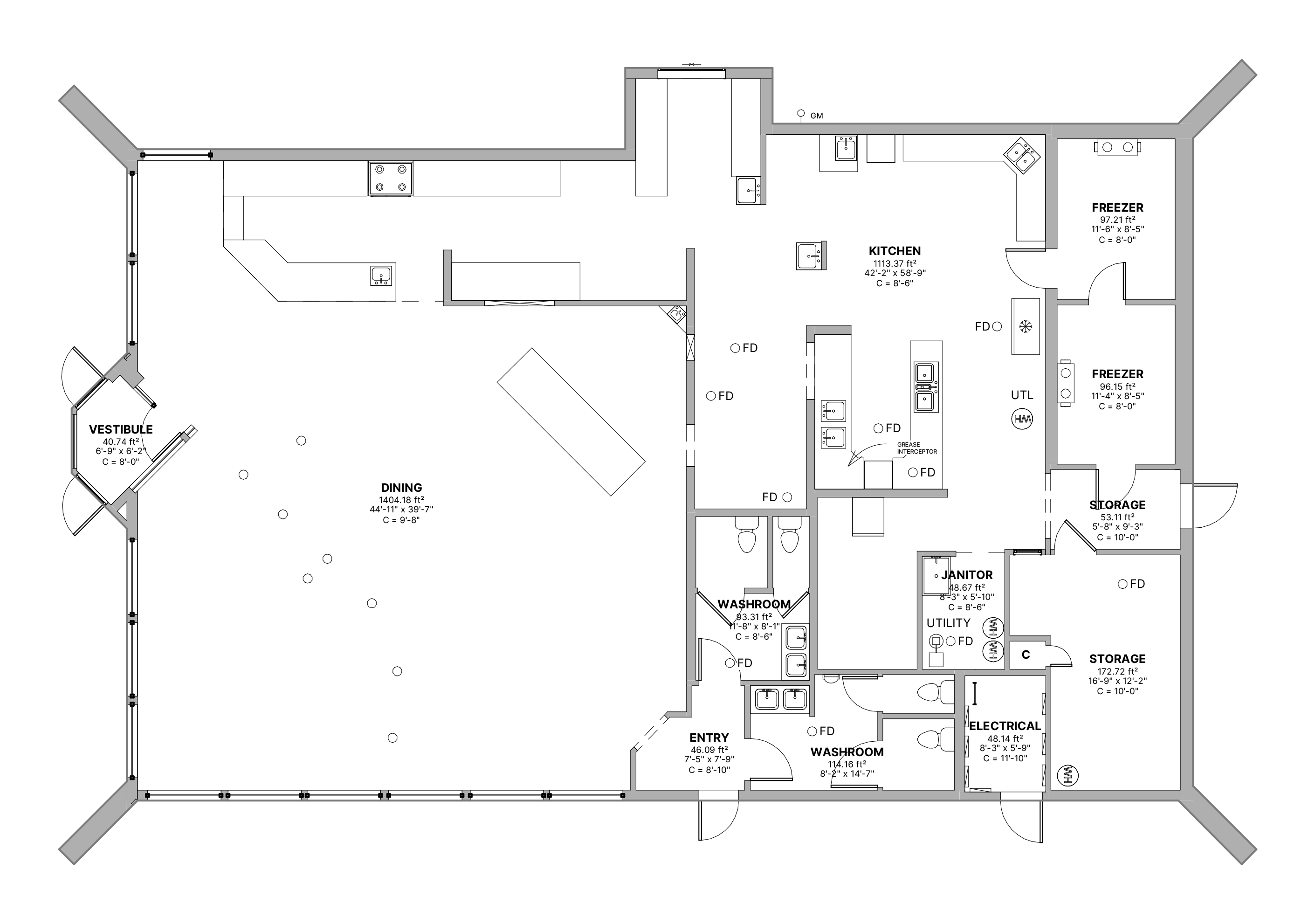
Precise CAD floor plans & models

Capturing thousands of measurements per scan, each CAD floor plan and 3D model is accurate and available in various formats.

Property detail

Provides room measurements, dimensions and total square footage for space planning purposes, including renovation and fit-out projects.

3D immersive walkthrough

Virtually walk through a real-world space to view conditions and easily locate critical assets including MEP.

Measurement tool

Take custom measurements anytime and anywhere with the virtual walkthrough iGUIDE Viewer.

Real-time tagging

Identify equipment, features, and deficiencies as well as links, files or images.

Photos

Option to include still photos for additional documentation.

Trusted by industry
professionals

    Before iGUIDE, we struggled with unreliable vendors, higher costs, and the need for repeat site visits. iGUIDE’s Service Pro network captures all the data we need, and iGUIDE delivers CAD drawings and 3D tours, streamlining our process. iGUIDE's fast, efficient, and affordable, saving us both time and money.

    AR Eissa
    Sr. Construction Manager
    BarBurrito

    Whether it be with the contractors, architects or developers, using iGUIDE made it easy for everybody to understand the project. With the online floorplan, virtual tour and CAD, it’s easier to stay on the same page. iGUIDE is a game-changer for me.

    Marcel Bradbury
    President
    Master Trades Group

    We have five people working in-house. We flipped the switch to utilizing the technology and we’re doing three to four times the amount of work with the same people.

    Carl Bernat
    President
    CCS Engineering & Construction

Discover our Knowledge Hub